|
Kenmerken :
|
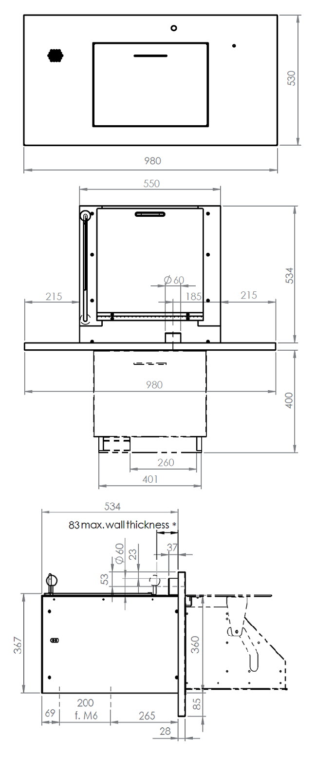
Afmetingen voorpaneel
|
|
Breedte
|
980mm
|
|
Diepte
|
28 mm
|
|
Hoogte
|
530 mm
|
|
Doorgeefafmetingen
|
|
Doorgeefhoogte
|
300 mm
|
|
Doorgeefbreedte
|
350 mm
|
|
Doorgeefdiepte
|
390 mm
|
|
Gewicht
|
|
120 kg
|
|
|
Beveiligingsniveau
|
|
UVV Germany
|
|
Andere kenmerken
|
|
Kleur
|
RVS
|
|
Onderhoud
|
Geen
|
|
|
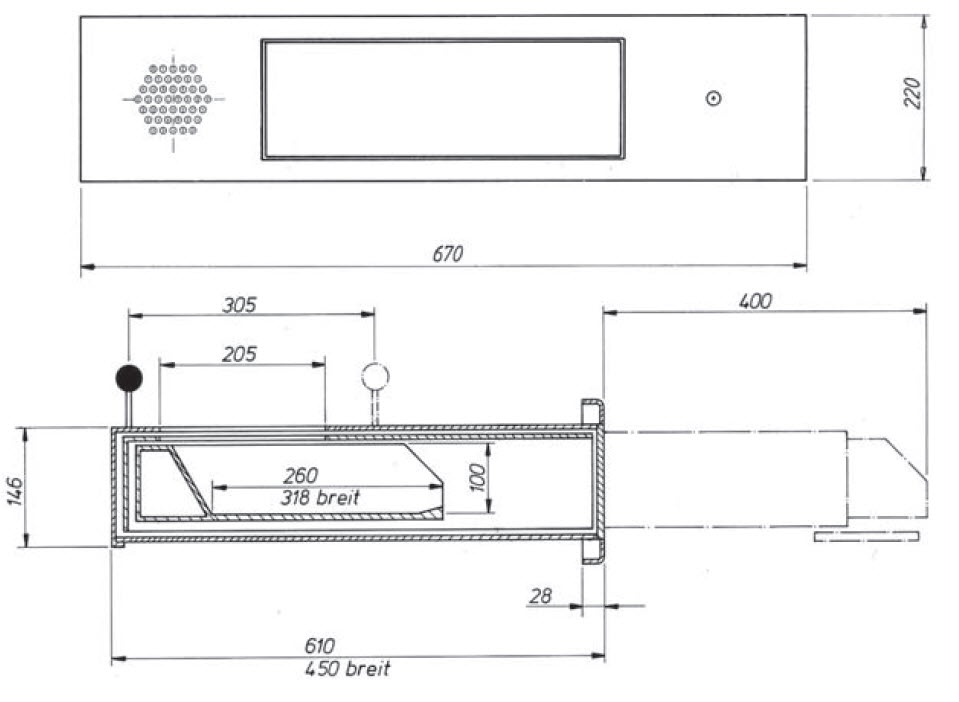
Auto & gevellade voor buitengebruik voor het doorgeven van grotere paketten.. Model 51.01 is een grote gevellade voor het afhandelen van financiële verrichtingen, waardepapieren, geld en muntstukkenuitwisselen van documenten en doorgeven van voorwerpen. De maximale grootte van door te geven paketten bedraagt 350mm x 300mm x390mm .
Deze doorgeeflade woedt speciaal ontwikkeld voor apothekers die een wachtdienst ‘s nachts moeten voorzien, maar kan natuurlijk ook voor andere toepassingen worden gebruikt.
Toepassingen: tolhuizen, banken, tankstations, apotheken, banken, enz.
Eigenschappen model 51,01: - frontpaneel en geïntegreerde intercom "Public" voor full-duplex spraakoverdracht. - handmatige bediening met ergonomische hendel - automatische vergrendeling in de eindstanden - voldoet aan de UVV
Uitvoering: - constructie in staal - frontpaneel en deksel in geborsteld roestvrij staal - zijkanten in aluminium Optioneel : - speciale maten en uitvoeringen voor verschillende soorten installaties - Speciale RAL-kleuren Downloads :
Flyer gevellade model 52A.01 - Duits
Flyer gevellade model 52A.01 - Engels
 |
|